H-96
Flott tømmerhytte over 2 plan og med kjelleretasje/garasje. 5 soverom, 2 bad + wc og åpen stue-/kjøkkenløsning med peis, store vindusflater og god takhøyde. 2 delt hems med mange muligheter.
BRA
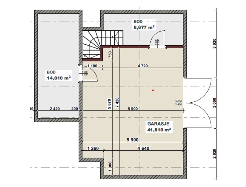
Kjeller: 69 m²
Hoved: 165 m²
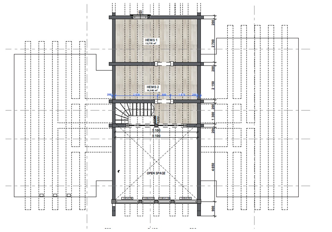
Hems: 30 m²
Plan
3
Soverom
5
Bad
2
BYA
179 m²
H-96
Denne hytta har en romslig hall med overbygget inngangsparti. Her er det god oppbevaringsplass og adkomst til en større bod- og med utvendig adkomst, teknisk rom, wc og en mindre bod, samt heis ned til kjeller/garasje.
Fra hallen er det tilgang til soverommene. På høyre side ligger hovedsoverommet med eget bad og svært god garderobeplass. De 4 øvrige soverom og bad ligger til venstre for hallen.
Rett frem i hytta ligger en romslig stue, store vindusflater, god takhøyde og vakker peis som skille mellom stue og kjøkken. En gjennomgående peis hvor man ser flammende fra begge sider.
Kjøkkenet er velutstyrte og har god plass til spisebord foran de store vindusflatene. Herfra er det og utgang til en stor deilig uteplass hvor bålplassen er nedfelt.
Andre etasje er en større todelt hems med mange muligheter.
Fra hallen er det tilgang til soverommene. På høyre side ligger hovedsoverommet med eget bad og svært god garderobeplass. De 4 øvrige soverom og bad ligger til venstre for hallen.
Rett frem i hytta ligger en romslig stue, store vindusflater, god takhøyde og vakker peis som skille mellom stue og kjøkken. En gjennomgående peis hvor man ser flammende fra begge sider.
Kjøkkenet er velutstyrte og har god plass til spisebord foran de store vindusflatene. Herfra er det og utgang til en stor deilig uteplass hvor bålplassen er nedfelt.
Andre etasje er en større todelt hems med mange muligheter.

Hyttegalleri
H-532
Flott laftehytte over to plan med fire soverom og to bad. Hytta har store vindusflater og god takhøyde.
Les mer om H-532H-22
Romslig og luftig stavlafthytte over to plan med fire soverom og to bad + WC. Store vindusflater og god takhøyde.
Les mer om H-22H-13
Denne flotte hytta ble tegnet til en dansk familie etter gjentatte besøk i den norske fjellheim.
Les mer om H-13H-522
Flott tømmerhytte over to plan med fem soverom, to bad, badstue og en romslig kjøkken-/stueløsning med peis.
Les mer om H-522H-1018
En praktfull stavlafthytte over to plan med fem soverom og 2 bad + wc. God takhøyde og store vindusflater.
Les mer om H-1018H-96
Flott tømmerhytte over 2 plan og med kjelleretasje/garasje. To-delt hems med mange muligheter.
Les mer om H-96H-526
Flott tømmerhytte med fem soverom, to bad, badstue og en romslig kjøkken-/stueløsning.
Les mer om H-526H-1034
En praktfull tømmerhytte med kjelleretasje tilpasset skråtomt. Hytta har sju soverom, to bad + WC.
Les mer om H-1034




















