H-526
Flott tømmerhytte med 5 soverom, 2 bad, badstue og en romslig kjøkken-/stueløsning.
BRA
Hoved: 140 m²
Plan
2
Soverom
5
Bad
2
BYA
152 m²
H-526
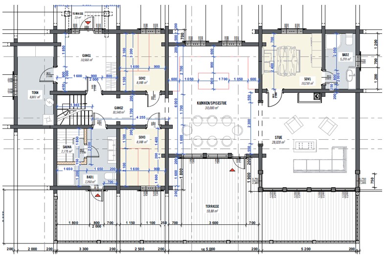
Denne hytta har en romslig hall med overbygget inngangsparti. Her er det god oppbevaringsplass og ligger ved siden av velutrustet vaskerom/teknisk med tilpasset innredning.
Fra hallen på venstre kommer man til 2 soverom med integrerte senger og garderobe. Videre til et stort velutstyrt kjøkken med kjøkkenøy og god plass til spisebord. Herfra er det utgang til terrasse. Den åpne løsningen fra kjøkkenet fører videre til stue med peis, store vindusflater og god takhøyde. Fra stuen er det adkomst til hovedsoverom med god garderobeplass og eget bad. Det øvrige badet ligger ved de to andre soverommene. Ett stort bad med badstue bak sotet glassvegg. Badet har utgang til terrasse.
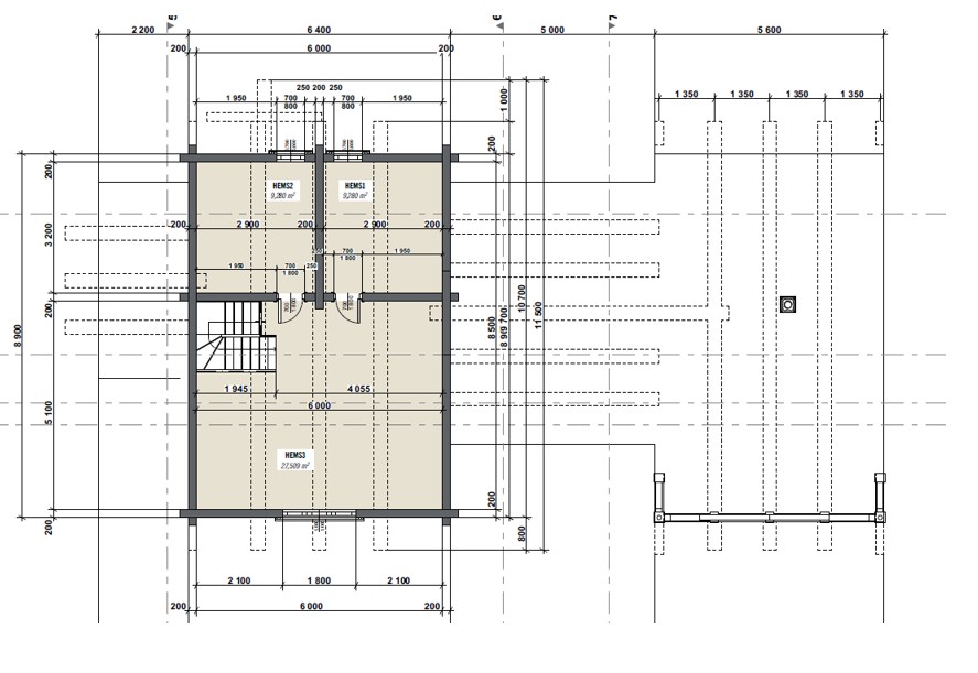
Andre etasje har to soverom med integrerte senger og stor TV-stue.
Fra hallen på venstre kommer man til 2 soverom med integrerte senger og garderobe. Videre til et stort velutstyrt kjøkken med kjøkkenøy og god plass til spisebord. Herfra er det utgang til terrasse. Den åpne løsningen fra kjøkkenet fører videre til stue med peis, store vindusflater og god takhøyde. Fra stuen er det adkomst til hovedsoverom med god garderobeplass og eget bad. Det øvrige badet ligger ved de to andre soverommene. Ett stort bad med badstue bak sotet glassvegg. Badet har utgang til terrasse.
Andre etasje har to soverom med integrerte senger og stor TV-stue.

Hyttegalleri
H-532
Flott laftehytte over to plan med fire soverom og to bad. Hytta har store vindusflater og god takhøyde.
Les mer om H-532H-22
Romslig og luftig stavlafthytte over to plan med fire soverom og to bad + WC. Store vindusflater og god takhøyde.
Les mer om H-22H-13
Denne flotte hytta ble tegnet til en dansk familie etter gjentatte besøk i den norske fjellheim.
Les mer om H-13H-522
Flott tømmerhytte over to plan med fem soverom, to bad, badstue og en romslig kjøkken-/stueløsning med peis.
Les mer om H-522H-1018
En praktfull stavlafthytte over to plan med fem soverom og 2 bad + wc. God takhøyde og store vindusflater.
Les mer om H-1018H-96
Flott tømmerhytte over 2 plan og med kjelleretasje/garasje. To-delt hems med mange muligheter.
Les mer om H-96H-526
Flott tømmerhytte med fem soverom, to bad, badstue og en romslig kjøkken-/stueløsning.
Les mer om H-526H-1034
En praktfull tømmerhytte med kjelleretasje tilpasset skråtomt. Hytta har sju soverom, to bad + WC.
Les mer om H-1034






















