H-532
Flott laftehytte over to plan med 4 soverom, 2 stuer, 2 bad, og en romslig kjøkken-/stueløsning med peis, store vindusflater og god takhøyde.
BRA
Hovedplan: 135 m²
2.etg: 45 m²
Plan
2
Soverom
4
Bad
2
BYA
144 m²
H-532
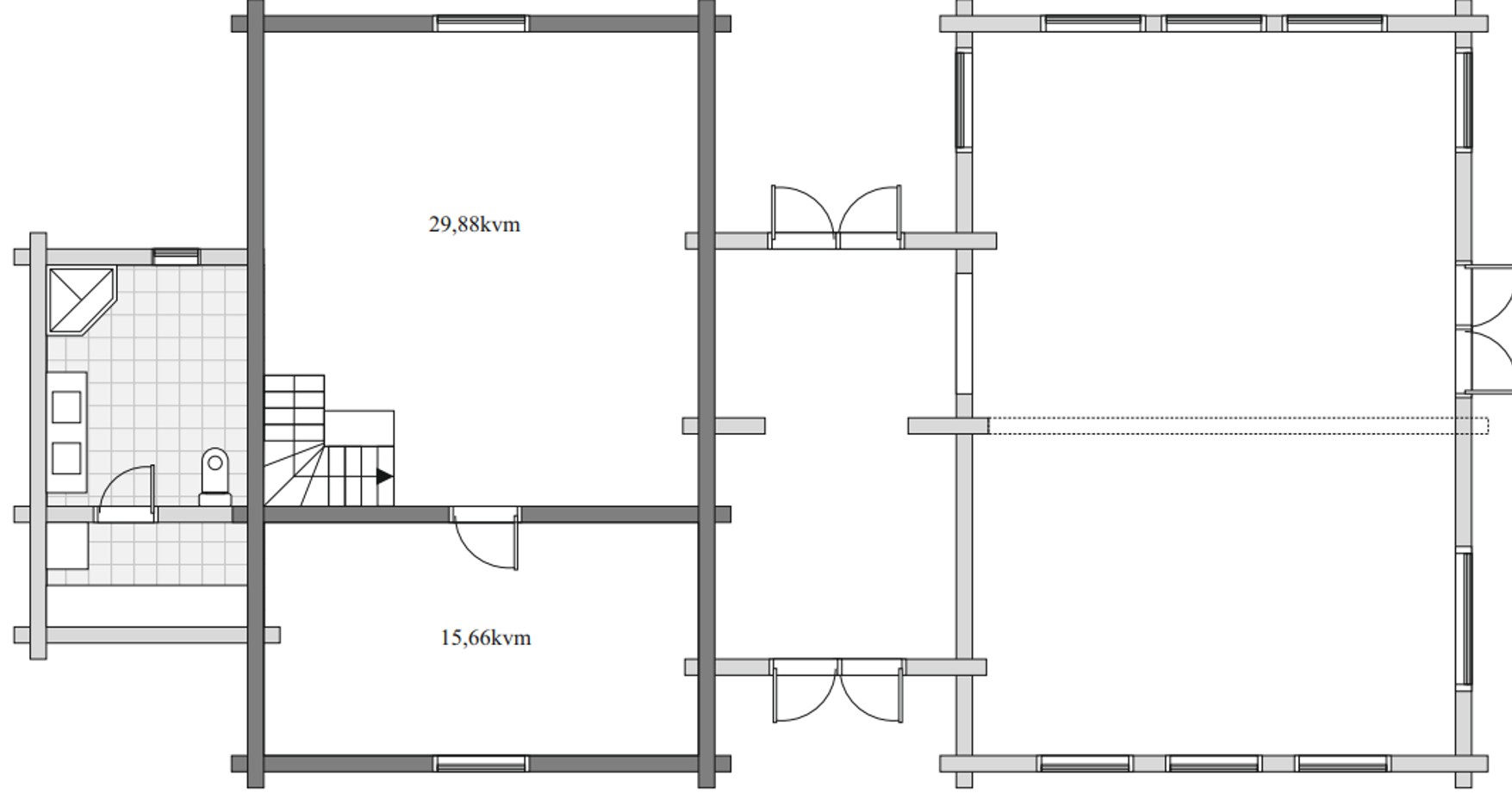
Denne hytta er formet som en H med 2 skip med utbygg på det ene skipet. Midt på hytta kommer man inn i en stor hall med god oppbevaring plass. Her er det adkomst til eget vaskerom/tekniskrom.
Fra hallen kommer man inn i gangen, hvor det og er utgang til terrassen. Til høyre i gangen ligger en stor stue med peis, store vindusflater og god takhøyde. Det er åpen løsningen til et stort velutstyrt kjøkken med kjøkkenøy. Her er det god plass til spisebord.
Til venstre fra gangen, er det 3 soverom og 2 bad, det ene med badstue. I denne delen er det trapp opp til andre etasje, hvor det er en romslig tv stue og et soverom med god garderobeplass.
Fra hallen kommer man inn i gangen, hvor det og er utgang til terrassen. Til høyre i gangen ligger en stor stue med peis, store vindusflater og god takhøyde. Det er åpen løsningen til et stort velutstyrt kjøkken med kjøkkenøy. Her er det god plass til spisebord.
Til venstre fra gangen, er det 3 soverom og 2 bad, det ene med badstue. I denne delen er det trapp opp til andre etasje, hvor det er en romslig tv stue og et soverom med god garderobeplass.

Hyttegalleri
H-532
Flott laftehytte over to plan med fire soverom og to bad. Hytta har store vindusflater og god takhøyde.
Les mer om H-532H-22
Romslig og luftig stavlafthytte over to plan med fire soverom og to bad + WC. Store vindusflater og god takhøyde.
Les mer om H-22H-13
Denne flotte hytta ble tegnet til en dansk familie etter gjentatte besøk i den norske fjellheim.
Les mer om H-13H-522
Flott tømmerhytte over to plan med fem soverom, to bad, badstue og en romslig kjøkken-/stueløsning med peis.
Les mer om H-522H-1018
En praktfull stavlafthytte over to plan med fem soverom og 2 bad + wc. God takhøyde og store vindusflater.
Les mer om H-1018H-96
Flott tømmerhytte over 2 plan og med kjelleretasje/garasje. To-delt hems med mange muligheter.
Les mer om H-96H-526
Flott tømmerhytte med fem soverom, to bad, badstue og en romslig kjøkken-/stueløsning.
Les mer om H-526H-1034
En praktfull tømmerhytte med kjelleretasje tilpasset skråtomt. Hytta har sju soverom, to bad + WC.
Les mer om H-1034

















