H-22
Romslig stavlafthytte over to plan med fire soverom og to bad + WC. Åpen kjøkken/stue-løsning med store vindusflater og god takhøyde.
BRA
Hoved: 148m²
Oppstue: 45m²
Plan
2
Soverom
4
Bad
2 + 1WC
BYA
163m²
H-22
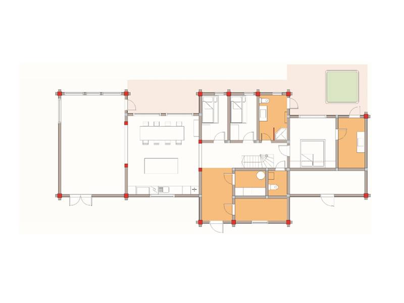
Denne hytten har en stor L formet gang som inneholder egen walk in garderobe, vaskerom og WC. 2 soverom med integrerte senger med garderobe, bad med utgang til terrasse. Innerst i gangen ligger hovedsoverommet med eget bad og utgang til terrasse.
Trapp til oppstue som inneholder TV – stue, og et stort soverom med 4 sengeplasser. I andre ende ligger et stort velutrustet kjøkken med stor kjøkkenøy, god takhøyde og store vindusflater med plass til stor spisetue.
Den åpne løsningen fører videre inn til stua med peis, store vinduer og 2 terrassedører som går ut til terrassen på hver side av hytta. Den utvendige boden ligger i enden av hytta.
Trapp til oppstue som inneholder TV – stue, og et stort soverom med 4 sengeplasser. I andre ende ligger et stort velutrustet kjøkken med stor kjøkkenøy, god takhøyde og store vindusflater med plass til stor spisetue.
Den åpne løsningen fører videre inn til stua med peis, store vinduer og 2 terrassedører som går ut til terrassen på hver side av hytta. Den utvendige boden ligger i enden av hytta.

Hyttegalleri
H-532
Flott laftehytte over to plan med fire soverom og to bad. Hytta har store vindusflater og god takhøyde.
Les mer om H-532H-22
Romslig og luftig stavlafthytte over to plan med fire soverom og to bad + WC. Store vindusflater og god takhøyde.
Les mer om H-22H-13
Denne flotte hytta ble tegnet til en dansk familie etter gjentatte besøk i den norske fjellheim.
Les mer om H-13H-522
Flott tømmerhytte over to plan med fem soverom, to bad, badstue og en romslig kjøkken-/stueløsning med peis.
Les mer om H-522H-1018
En praktfull stavlafthytte over to plan med fem soverom og 2 bad + wc. God takhøyde og store vindusflater.
Les mer om H-1018H-96
Flott tømmerhytte over 2 plan og med kjelleretasje/garasje. To-delt hems med mange muligheter.
Les mer om H-96H-526
Flott tømmerhytte med fem soverom, to bad, badstue og en romslig kjøkken-/stueløsning.
Les mer om H-526H-1034
En praktfull tømmerhytte med kjelleretasje tilpasset skråtomt. Hytta har sju soverom, to bad + WC.
Les mer om H-1034

















