H-1034
En praktfull tømmerhytte med kjelleretasje tilpasset skråtomt. Sju soverom, to bad + WC, badstue og romslig kjøkken-/stueløsning med peis, store vindusflater og god takhøyde.
BRA
Kjeller: 145 m²
Hovedplan: 160 m²
Plan
2
Soverom
7
Bad
2 + 1 WC
BYA
181 m²
H-1034
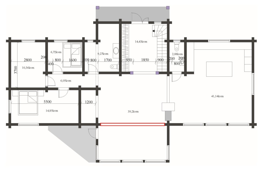
Denne hytta har et overbygget inngangsparti med adkomst til en hall med god garderobeplass. En trapp med innfelt lys, går ned til underetasjen. Ved siden av hallen er det wc.
Fra hallen kommer man inn til en stor stue med koselig daybed for små og store, store vindusflater og god takhøyde. Fra stua er det utgang til en mindre, men flott terrasse med glassrekkverk.
Den åpne løsningen fører videre mot et velutstyrt kjøkken med kjøkkenøy med stor plass til spisestue. Mellom disse rommene, står en peis med flammeinnsyn fra begge rom.
I hyttas andre del finner vi 3 soverom med integrert senger og garderobe, samt ett stort bad med dobbeldusj.
Underetasjen har et smakfullt innglasset vinrom, stor stue med utgang til terrassen og egen TV – stue. 4 soverom med integrerte senger og skap. Romslig bad med badstue, eget vaskerom/teknisk med integrert innredning. Velutrustet stor skibod, hvor det er utgang til uteplassen med jacuzzi, grillhytte og skibakke.
Fra hallen kommer man inn til en stor stue med koselig daybed for små og store, store vindusflater og god takhøyde. Fra stua er det utgang til en mindre, men flott terrasse med glassrekkverk.
Den åpne løsningen fører videre mot et velutstyrt kjøkken med kjøkkenøy med stor plass til spisestue. Mellom disse rommene, står en peis med flammeinnsyn fra begge rom.
I hyttas andre del finner vi 3 soverom med integrert senger og garderobe, samt ett stort bad med dobbeldusj.
Underetasjen har et smakfullt innglasset vinrom, stor stue med utgang til terrassen og egen TV – stue. 4 soverom med integrerte senger og skap. Romslig bad med badstue, eget vaskerom/teknisk med integrert innredning. Velutrustet stor skibod, hvor det er utgang til uteplassen med jacuzzi, grillhytte og skibakke.

Hyttegalleri
H-532
Flott laftehytte over to plan med fire soverom og to bad. Hytta har store vindusflater og god takhøyde.
Les mer om H-532H-22
Romslig og luftig stavlafthytte over to plan med fire soverom og to bad + WC. Store vindusflater og god takhøyde.
Les mer om H-22H-13
Denne flotte hytta ble tegnet til en dansk familie etter gjentatte besøk i den norske fjellheim.
Les mer om H-13H-522
Flott tømmerhytte over to plan med fem soverom, to bad, badstue og en romslig kjøkken-/stueløsning med peis.
Les mer om H-522H-1018
En praktfull stavlafthytte over to plan med fem soverom og 2 bad + wc. God takhøyde og store vindusflater.
Les mer om H-1018H-96
Flott tømmerhytte over 2 plan og med kjelleretasje/garasje. To-delt hems med mange muligheter.
Les mer om H-96H-526
Flott tømmerhytte med fem soverom, to bad, badstue og en romslig kjøkken-/stueløsning.
Les mer om H-526H-1034
En praktfull tømmerhytte med kjelleretasje tilpasset skråtomt. Hytta har sju soverom, to bad + WC.
Les mer om H-1034























