H-522
Flott tømmerhytte over to plan med fem soverom, to bad, badstue og en romslig kjøkken-/stueløsning med peis.
BRA
Hoved: 140 m²
Hems: 52 m²
Plan
2
Soverom
5
Bad
2
BYA
150 m²
H-522
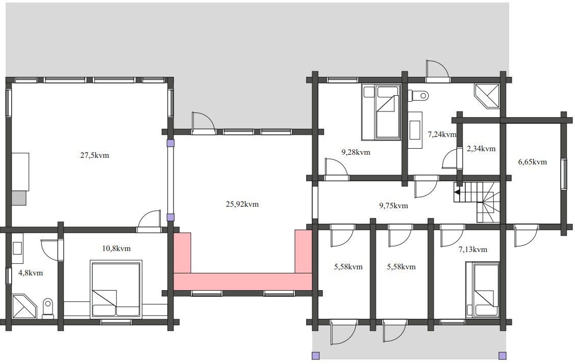
Hytta har stort overbygd inngangsparti med flotte kraftig søyler. Fra gangene med integrert garderobe, er det adkomst på venstre side, til et velutstyrt kjøkken med kjøkkenøy og god plass til spisebord. Herfra er det utgang til en flott terrasse.
Den åpne løsningen fra kjøkkenet er tilknyttet en stue med peis, god takhøyde og store vindusflater.
I denne delen ligger også hovedsoverommet med eget bad.
På høyre side av gangen er det 2 soverom og bad med badstue og utgang til terrasse. Vaskerommet ved siden av gangen har både innvendig og utvendig adkomst
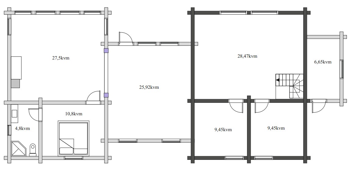
Andre etasje inneholder stor Tv- stue og 2 soverom med integrerte senger.
Hytta har og utvendig bod med egen inngang.
Den åpne løsningen fra kjøkkenet er tilknyttet en stue med peis, god takhøyde og store vindusflater.
I denne delen ligger også hovedsoverommet med eget bad.
På høyre side av gangen er det 2 soverom og bad med badstue og utgang til terrasse. Vaskerommet ved siden av gangen har både innvendig og utvendig adkomst
Andre etasje inneholder stor Tv- stue og 2 soverom med integrerte senger.
Hytta har og utvendig bod med egen inngang.

Hyttegalleri
H-532
Flott laftehytte over to plan med fire soverom og to bad. Hytta har store vindusflater og god takhøyde.
Les mer om H-532H-22
Romslig og luftig stavlafthytte over to plan med fire soverom og to bad + WC. Store vindusflater og god takhøyde.
Les mer om H-22H-13
Denne flotte hytta ble tegnet til en dansk familie etter gjentatte besøk i den norske fjellheim.
Les mer om H-13H-522
Flott tømmerhytte over to plan med fem soverom, to bad, badstue og en romslig kjøkken-/stueløsning med peis.
Les mer om H-522H-1018
En praktfull stavlafthytte over to plan med fem soverom og 2 bad + wc. God takhøyde og store vindusflater.
Les mer om H-1018H-96
Flott tømmerhytte over 2 plan og med kjelleretasje/garasje. To-delt hems med mange muligheter.
Les mer om H-96H-526
Flott tømmerhytte med fem soverom, to bad, badstue og en romslig kjøkken-/stueløsning.
Les mer om H-526H-1034
En praktfull tømmerhytte med kjelleretasje tilpasset skråtomt. Hytta har sju soverom, to bad + WC.
Les mer om H-1034






















