H-3
Praktfull tømmerlafthytte med kjelleretasje, tegnet spesielt for skråtomt, med 5 soverom, 2 stuer, 2 bad, WC, badstue, åpent kjøkken, 3 peiser, store vindusflater og god takhøyde.
BRA
Kjeller: 100 m²
Hoved: 112 m²
Hems: 33 m²
Plan
3
Soverom
5
Bad
2 + 1WC
BYA
175 m²
H-3
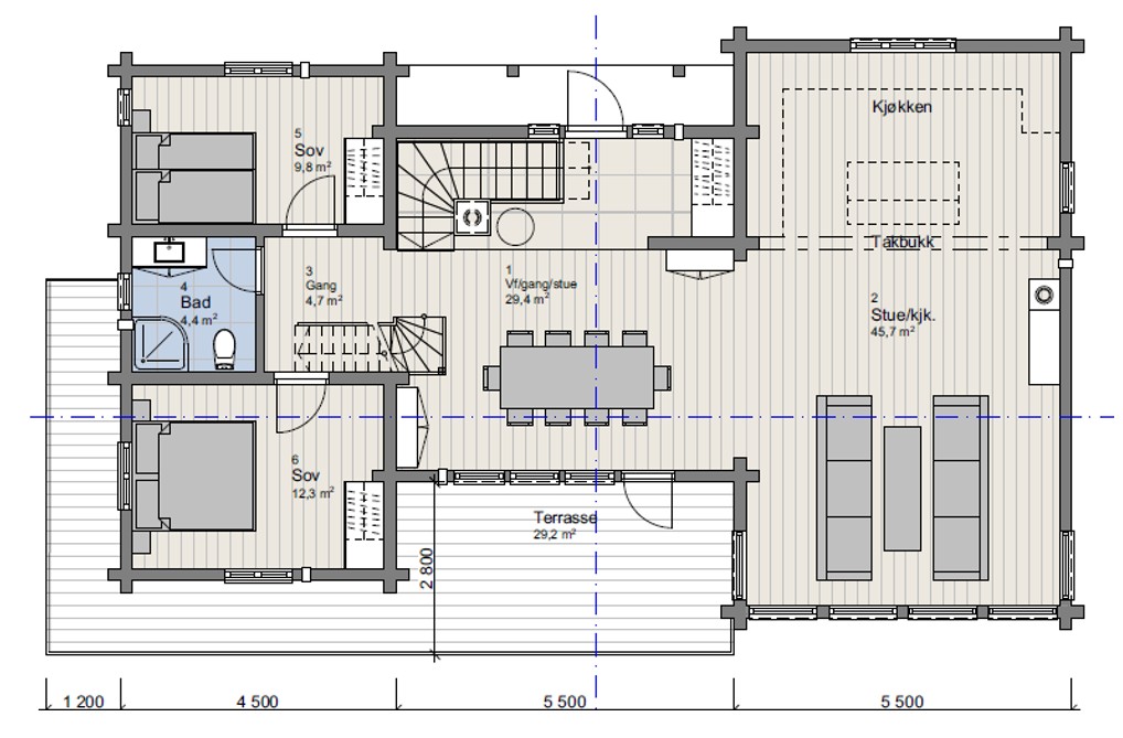
Denne flotte hytta har et overbygd inngangsparti med adkomst til en åpen hall som fører inn til spiseplass med egen peis og utgang til en terrasse med glassrekkverk. Til venstre for spiseplassen ligger en romslig stue med peis, god takhøyde og store vindusflater. Den åpne løsningen er tilknyttet et velutstyrt kjøkken med kjøkkenøy.
Til høyre fra spiseplassen ligger 2 soverom og et bad. Trappen her går opp til hemsen med 2 soverom og oppholdsrom i midten.
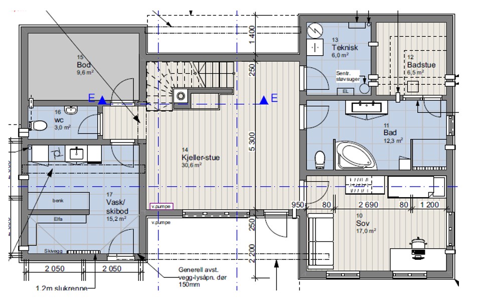
Trapp fra hovedplan ned til underetasjen som har en stor TV-stue, peis, soverom med god garderobeplass, bad og badstue, samt teknisk rom. På høyre side av TV-stuen er det bod, WC og en praktisk ski bod og vaskerom med direkte utgang til uteplass og skibakke.
Til høyre fra spiseplassen ligger 2 soverom og et bad. Trappen her går opp til hemsen med 2 soverom og oppholdsrom i midten.
Trapp fra hovedplan ned til underetasjen som har en stor TV-stue, peis, soverom med god garderobeplass, bad og badstue, samt teknisk rom. På høyre side av TV-stuen er det bod, WC og en praktisk ski bod og vaskerom med direkte utgang til uteplass og skibakke.

Hyttegalleri
H-532
Flott laftehytte over to plan med fire soverom og to bad. Hytta har store vindusflater og god takhøyde.
Les mer om H-532H-22
Romslig og luftig stavlafthytte over to plan med fire soverom og to bad + WC. Store vindusflater og god takhøyde.
Les mer om H-22H-13
Denne flotte hytta ble tegnet til en dansk familie etter gjentatte besøk i den norske fjellheim.
Les mer om H-13H-522
Flott tømmerhytte over to plan med fem soverom, to bad, badstue og en romslig kjøkken-/stueløsning med peis.
Les mer om H-522H-1018
En praktfull stavlafthytte over to plan med fem soverom og 2 bad + wc. God takhøyde og store vindusflater.
Les mer om H-1018H-96
Flott tømmerhytte over 2 plan og med kjelleretasje/garasje. To-delt hems med mange muligheter.
Les mer om H-96H-526
Flott tømmerhytte med fem soverom, to bad, badstue og en romslig kjøkken-/stueløsning.
Les mer om H-526H-1034
En praktfull tømmerhytte med kjelleretasje tilpasset skråtomt. Hytta har sju soverom, to bad + WC.
Les mer om H-1034



















