H-13
Denne flotte hytta ble tegnet til en dansk familie etter gjentatte besøk i den norske fjellheim.
BRA
Hoved: 137 m²
Hems: 47 m²
Plan
2
Soverom
5
Bad
2
BYA
150 m²
H-13
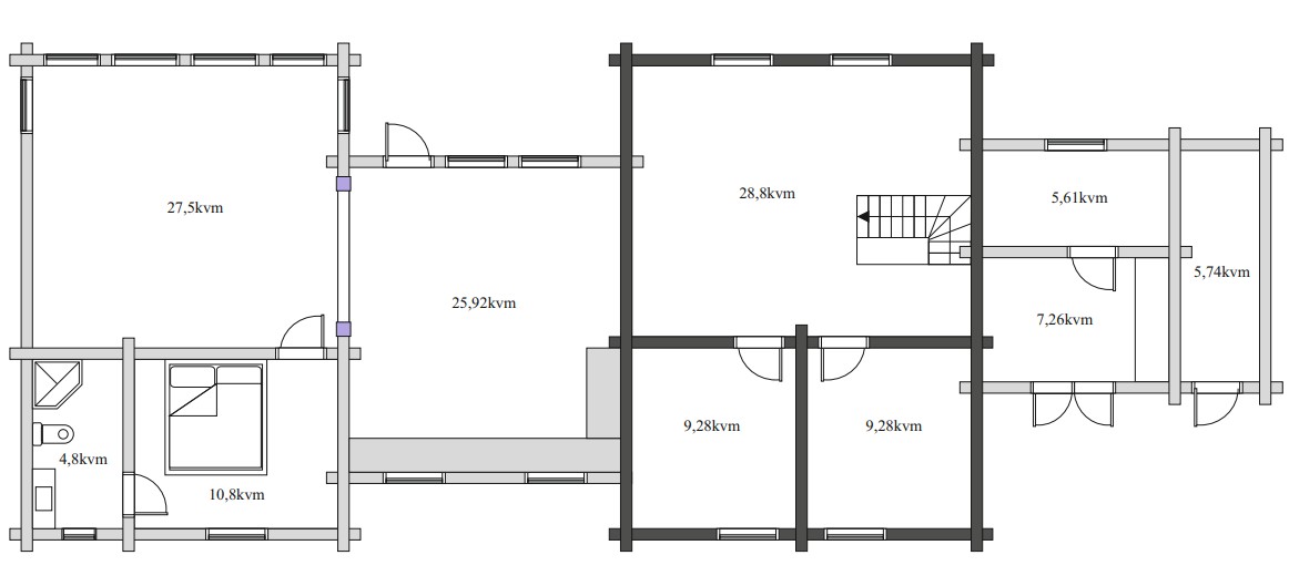
Fra inngangspartiet på hyttas høyre side møter man en romslig hall med god garerobeplass. Innenfor ligger et velutrustet vaskerom med tilpasset innredning.
Den åpne løsningen på venstre side rommer en trappegang til andre etasje med stor TV-stue og 2 soverom. Videre fra gangen nede ligger 2 soverom med integrerte senger. På motsatt side, ligger en bod, ett større bad med utgang til stor terrasse.
I denne delen er det videre til et romslig velutstyrt kjøkken med stor kjøkkenøy og godt med plass til spisestue. Her er det utgang til terrasse også. Den åpneløsningen fører videre til en romslig stue med peis, god takhøyde og store vindusflater som gir mye lys og god utsikt.
Innenfor stua ligger hovedsoverommet med eget bad.
Ved hyttas hovedinngang er det større bod med utvendig tilgang.
Den åpne løsningen på venstre side rommer en trappegang til andre etasje med stor TV-stue og 2 soverom. Videre fra gangen nede ligger 2 soverom med integrerte senger. På motsatt side, ligger en bod, ett større bad med utgang til stor terrasse.
I denne delen er det videre til et romslig velutstyrt kjøkken med stor kjøkkenøy og godt med plass til spisestue. Her er det utgang til terrasse også. Den åpneløsningen fører videre til en romslig stue med peis, god takhøyde og store vindusflater som gir mye lys og god utsikt.
Innenfor stua ligger hovedsoverommet med eget bad.
Ved hyttas hovedinngang er det større bod med utvendig tilgang.

Hyttegalleri
H-532
Flott laftehytte over to plan med fire soverom og to bad. Hytta har store vindusflater og god takhøyde.
Les mer om H-532H-22
Romslig og luftig stavlafthytte over to plan med fire soverom og to bad + WC. Store vindusflater og god takhøyde.
Les mer om H-22H-13
Denne flotte hytta ble tegnet til en dansk familie etter gjentatte besøk i den norske fjellheim.
Les mer om H-13H-522
Flott tømmerhytte over to plan med fem soverom, to bad, badstue og en romslig kjøkken-/stueløsning med peis.
Les mer om H-522H-1018
En praktfull stavlafthytte over to plan med fem soverom og 2 bad + wc. God takhøyde og store vindusflater.
Les mer om H-1018H-96
Flott tømmerhytte over 2 plan og med kjelleretasje/garasje. To-delt hems med mange muligheter.
Les mer om H-96H-526
Flott tømmerhytte med fem soverom, to bad, badstue og en romslig kjøkken-/stueløsning.
Les mer om H-526H-1034
En praktfull tømmerhytte med kjelleretasje tilpasset skråtomt. Hytta har sju soverom, to bad + WC.
Les mer om H-1034



















