H-1018
En praktfull stavlafthytte over to plan med 5 soverom, 3 stuer, 2 bad + wc, kontorplass. Åpen kjøkken- stueløsning med peis, god takhøyde og store vindusflater.
BRA
Hoved: 147 m²
Hems: 67 m²
Plan
2
Soverom
5
Bad
3 + 1WC
BYA
175 m²
H-1018
En enestående hytte med et stramt og moderne uttrykk. Kombinasjonen med mye tømmer og tre, samt betong, fliser, speil, glass og grove tekstiler gir den lune gode følelsen.
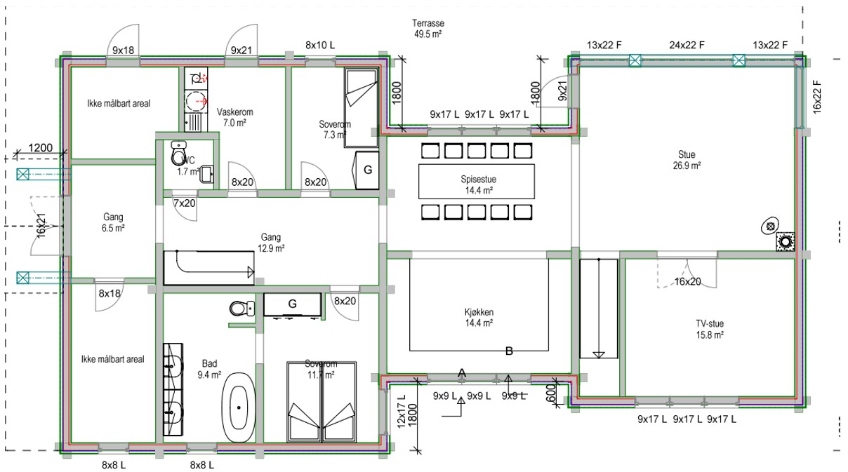
Denne flotte hytta har et overbygd inngangsparti inn til yttergang med tilknytning til ski bod og god oppbevaringsplass.
Fra hallen ligger tilgangen til hovedsoverommet med eget bad. På motsatt side, gjesterom, wc, vaskerom med dusj og utgang til skiferterrasse med nedfelt jacuzzi. Fra terrassen er det adkomst til utvendig bod.
Videre fra hallen kommer man til et stort velutstyrt kjøkken med kjøkkenøy, god takhøyde og god plass til spisebord. Åpen løsning inn mot stue som har store glassflater og flott designerpeis. Fra stua er det utgang til stor terrasse. Innenfor stua ligger egen Tv – stue med store vinduer og smijerns dør med mye glass som gir en åpen romfølelse.
Andre etasje har 3 soverom med god garderobe/oppbevaringsplass, bad, tv-stue og kontorplass. Alle rom har integrerte senger og øvrige ønsker.
Denne flotte hytta har et overbygd inngangsparti inn til yttergang med tilknytning til ski bod og god oppbevaringsplass.
Fra hallen ligger tilgangen til hovedsoverommet med eget bad. På motsatt side, gjesterom, wc, vaskerom med dusj og utgang til skiferterrasse med nedfelt jacuzzi. Fra terrassen er det adkomst til utvendig bod.
Videre fra hallen kommer man til et stort velutstyrt kjøkken med kjøkkenøy, god takhøyde og god plass til spisebord. Åpen løsning inn mot stue som har store glassflater og flott designerpeis. Fra stua er det utgang til stor terrasse. Innenfor stua ligger egen Tv – stue med store vinduer og smijerns dør med mye glass som gir en åpen romfølelse.
Andre etasje har 3 soverom med god garderobe/oppbevaringsplass, bad, tv-stue og kontorplass. Alle rom har integrerte senger og øvrige ønsker.

Hyttegalleri
H-532
Flott laftehytte over to plan med fire soverom og to bad. Hytta har store vindusflater og god takhøyde.
Les mer om H-532H-22
Romslig og luftig stavlafthytte over to plan med fire soverom og to bad + WC. Store vindusflater og god takhøyde.
Les mer om H-22H-13
Denne flotte hytta ble tegnet til en dansk familie etter gjentatte besøk i den norske fjellheim.
Les mer om H-13H-522
Flott tømmerhytte over to plan med fem soverom, to bad, badstue og en romslig kjøkken-/stueløsning med peis.
Les mer om H-522H-1018
En praktfull stavlafthytte over to plan med fem soverom og 2 bad + wc. God takhøyde og store vindusflater.
Les mer om H-1018H-96
Flott tømmerhytte over 2 plan og med kjelleretasje/garasje. To-delt hems med mange muligheter.
Les mer om H-96H-526
Flott tømmerhytte med fem soverom, to bad, badstue og en romslig kjøkken-/stueløsning.
Les mer om H-526H-1034
En praktfull tømmerhytte med kjelleretasje tilpasset skråtomt. Hytta har sju soverom, to bad + WC.
Les mer om H-1034




































